賃貸物件(東京・埼玉・千葉)なら山商建物

募集情報 Recruitment

新松戸 山商ビルディング/8044コーポラス

松戸市新松戸の区画整理地内の商業施設に隣接した閑静な住宅地の中にあるマンションです。

JR常磐線・武蔵野線の発着、交通も便利で大変人気のある立地にございます。駐車場有。

物件地図



302号室/306号室

物件写真(クリックすると拡大写真になります。)


物件概要(302号室・306号室)

       
賃料 42,000円 共益費 3,000円
敷/礼 1ヵ月/0ヵ月 水道料 3,327円/月
立地 JR常磐線 新松戸駅 徒歩12分 構造 鉄筋コンクリート造
間取り 1K 面積 25.83㎡
設備 クーラー、IHクッキングヒーター、プロパンガス、追い炊き機能付き給湯器、モニター付きインターフォン、ミニ冷蔵庫、洗濯機置き場、ユニットバス その他 入居可能時期:即時
火災保険:2年更新
保証会社加入必須、ペット不可
単身者向け


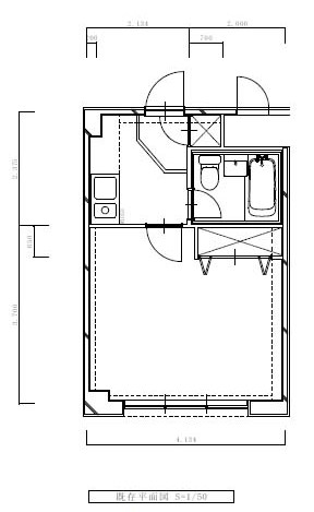
103号室

物件概要(103号室)

       
賃料 72,000円 共益費 3,000円
敷/礼 1ヵ月/0ヵ月 水道料 6,815円/月
間取り 2LDK 面積 52.91㎡
設備 対面システムキッチン、クーラー、IHクッキングヒーター、プロパンガス、追い炊き機能付き給湯器、モニター付きインターフォン、洗濯機置き場 その他 入居可能時期:即時
火災保険:2年更新
保証会社加入必須、ペット不可
カップル/ファミリー向け

ナビゲーション